 
  
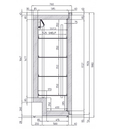
  Armoire de stockage ADSP400 IARP
                    
          
          743,40 €
          
                      
            1 239,00 €
                                      -40%
                                  
          
          
        
          
    
     
   
 
  
   
  
  Please sign in first.
Se connecter